YFA PROJETS CONTACT

Maison CTCO

Saint-Didier-de-Formans_01

 

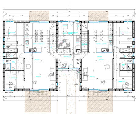
Maison double avec espaces partages

Cette opération consiste en la création d’un habitat partagé entre deux familles (4 adultes et 5 enfants). Le concept est d’offrir l’équilibre parfait entre intimité familiale et partage. La maison est ainsi divisée en une maison Ouest et une maison Est séparées par des espaces communs aussi bien au RDC qu’au R+1.

 Les espaces communs accueillent les espaces suivants: hall d’entrée, buanderie, chaufferie au RDC, atelier/salle de jeu/lecture, chambre d’amis à l’étage. Par un jeu de clés à l’étage, l’atelier et la chambre d’amis peuvent être privatisés par l’une ou l’autre famille selon les besoins.

 De nombreuses logiques et systèmes techniques à la fois simple et vertueux ont été mis en place pour atteindre les objectifs de construction responsable: ossature bois avec utilisation uniquement de la filière bois locale uniquement (<50 km), récupération des eaux pluviales, utilisation de l’énergie solaire (eau chaude), exploitation des apports solaires passifs, chaudière bois, isolation laine de bois et ouate de cellulose, radier massif chauffant isolé en sous face par verre cellulaire pour inertie, étanchéité à l’air niveau passif, menuiseries bois  avec triple vitrage.

 La façade de l’étage est habillée d’un bardage aluminium et la façade du RDC par un bois brut qui sera ensuite traité  selon les orientations de façon écologique afin de garantir un vieillissement élégant.

 Le projet est par ailleurs dans une zone soumise à l’avis des architectes de bâtiments de France.

maîtrise d’ouvrage : Privée

 

mission : Programmation + base + EXE + OPC + Économie de la construction

 

surface : SHAB -  280 m² SP

 

budget : 650 000€ HT

 

Taux de rémunération : 11 % du montant de travaux

 

Calendrier : début des études 2016 - livraison 06/2018