YFA PROJETS CONTACT

Réhabilitation + extension

Montailleur _73

 

Marche de maitrise d’oeuvre pour la réhabilitation et l’extension des bâtiments mairie école et bibliothèque de Montailleur (73)

 L’extension et la réhabilitation des bâtiments mairie, école, bibliothèque et salle polyvalente de Montailleur est le plus gros chantier qu’a connu la commune depuis plusieurs décennies.

 Il s’agit d’un travail sur le lieu clé de la vie partagé des citoyens: le coeur du village.

Programme: Réhabilitation complète et extension de l’école, réalisation d’un bibliothèque, reprise de tous les abords, restructuration générale du fonctionnement des bâtiments pour une mise au norme complète (sécurité, thermique, PMR...).

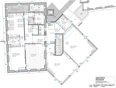
 Un des objectifs principaux du projet était de ramener sur le même étage l’ensemble des salles qui concernent la scolarité, de répondre aux normes pour les accès des personnes à mobilités réduites tout en améliorant l’ergonomie des locaux et en conservant toute la surface du parc de la mairie et de la cour d’école.

 La question qui s’est donc posée est: «comment rajouter 300 m² de programme sur un site déjà très dense sans en réduire la surface des espaces libres au sol».

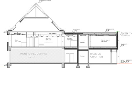
 Nous avons travaillé sur le concept de la construction métallique, avec un bâtiment léger, contrastant avec les bâtiments anciens, bien assis sur leur base, les mettant ainsi en valeur tout en amenant une modernité dans la structure et les matériaux. Le choix de l’inox en façade s’est fait au regard de l’histoire de la commune par le biais des nombreuses personnes qui travaillent à Ugitech. Son aspect miroir permet de venir jouer avec la richesse des paysages en renvoyant, selon les points de vue, une image stylisée.

 

maitrise d’ouvrage : Commune de Montailleur

 

mission : Base + VISA + OPC

 

surface : Extension 300 m² - Réhab 450 m² SP - extérieurs 1000 m²

 

budget : 1 160 000 euros HT

 

Calendrier : Appel d’offre: janvier 2012 - livré: septembre 2013

 

équipe : Architecte mandataire: Youri Favre, Economiste de la construction: Youri  Favre, bureau d’étude fluides: Ecome énergie, bureau d’étude structure: ETBA.